
構造設計あるあるミス集では、図面担当や計算担当がやりがちなミスや、担当者間の認識のずれ、確認不足で生じた失敗などの具体事例をご紹介します!
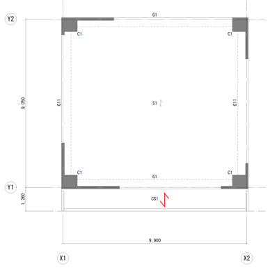
本記事は、構造図面の初級ミス「伏図に片持ちスラブの主筋方向を示す記号を入れ忘れた。」に関する内容です。
日頃の設計業務でも同じようなミスをしていないか、ぜひ振り返りながらご覧ください。
構造設計あるあるミスの詳細
| ミスNo. | 9 |
| レベル | 構造図面 初級 |
| 構造種別 | ■RC造 □WRC造 □S造 □その他 □共通 |
| 部位 | □柱 □梁 □壁 □基礎 □接合部 ■二次部材 □その他 □共通 |
ミスの内容
レイヤーを文字と矢印で分けていたため、片持ちスラブ符号を記載する際に「主筋方向の記号は最後にまとめて入力しよう」と後回しにしていた。
結果的にその作業を忘れてしまい、主筋方向が未記入のまま計算担当のチェックを受け、ミスが発覚した。

原因
文字と矢印のレイヤーが分かれており、コピー作業で取りこぼしが起きやすい状態だった。
また、後回しにしたタスクを思い出すための対策をしていなかった。
改善方法と対策
スラブ符号を描いたタイミングで、主筋方向もセットで必ず記載する。
スラブ符号と主筋方向の矢印を同じレイヤーで管理することで、コピー時の抜け漏れが防げる。
ストラボ小林からの教訓

関連記事一覧
あるあるミス図面初級編#4|境界線の名称のコピペミスと建物と境界線の距離の描き忘れ
あるあるミス図面初級編#7|基礎伏図なのに特記事項に設計GLではなくSLと表記していた
あるあるミス図面初級編#3|伏図にX/Yの方向を示す矢印の入れ忘れ
あるあるミス図面初級編#8|ボーリング柱状図の設計GLの線が孔口標高に対して上下逆
あるあるミス図面初級編#2|過去物件の要領図をそのまま引用
あるあるミス図面初級編#5|符号は部材の中央に配置するというルールの違反
あるあるミス図面初級編#10|壁式構造の階段において切替の線を実線ではなく点線に...